Listing Tools

Mixed-use property with exceptional flexibility! This 5.8+/-acre estate features a spacious Cape-style home with 3 bedrooms, 2.5 baths, an in-ground pool, and an attached garage. A large, detached, multi-purpose garage offers an ideal space for a tradesman shop, vehicle repair, sales, retail, or office, perfect for the creative entrepreneur. Enjoy excellent traffic count and great exposure for your business interests, allowing you to live and work onsite. Conveniently located about 30 minutes from the coast and Augusta. The property is also part of a larger parcel, MLS# 1633296, and the overall property is listed in multiple configurations. Survey and subdivision plans are available. Don't miss this unique opportunity!

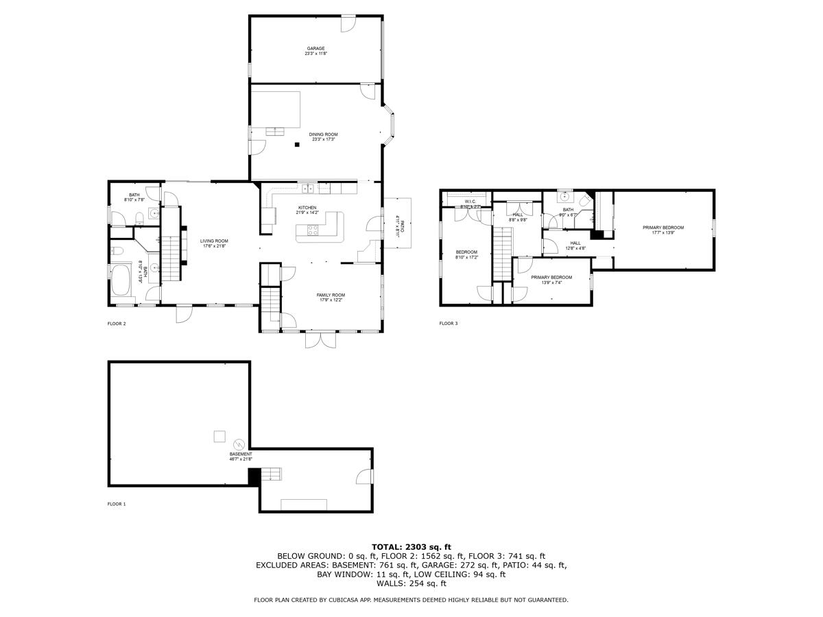
Property Details of 317 Augusta Road

Property Details

Interior Features

Exterior Features

Utilities and Appliances

Other Details

Map Location

Driving Directions

Listed by Cates Real Estate (info@catesre.com)

Listing data is derived in whole or in part from the Maine IDX & is for consumers' personal, non commercial use only. Dimensions are approximate and not guaranteed. All data should be independently verified. ©2026 Maine Real Estate Information System, Inc. All Rights Reserved. equal opportunity housing logo   Privacy Policy

Megunticook Real Estate participates in ©2026 Maine Listings Internet Data Exchange program, allowing us to display other Maine IDX Participants' listings. This website does not display complete listings. Certain listings of other real estate brokerage firms have been excluded. Mortgage figures are estimates. Check with your bank or proposed mortgage company for actual interest rates. This product uses the FRED® API but is not endorsed or certified by the Federal Reserve Bank of St. Louis.

Hi there! How can we help you?

Contact us using the form below or give us a call.

Send Us A Message:

I agree to receive marketing and customer service calls and text messages from Megunticook Real Estate. To opt out, you can reply 'stop' at any time or click the unsubscribe link in the emails. Consent is not a condition of purchase. Msg/data rates may apply. Msg frequency varies. Privacy Policy.

Do not fill in this field:

This site is protected by reCAPTCHA and the Google Privacy Policy and Terms of Service apply.

Hi there! How can we help you?

Contact us using the form below or give us a call.

Send Us A Message:

Do not fill in this field:

This site is protected by reCAPTCHA and the Google Privacy Policy and Terms of Service apply.

Hi there! How can we help you?

Contact us using the form below or give us a call.

Send Us A Message:

Do not fill in this field:

This site is protected by reCAPTCHA and the Google Privacy Policy and Terms of Service apply.

Do not fill in this field:

This site is protected by reCAPTCHA and the Google Privacy Policy and Terms of Service apply.

Do not fill in this field:

This site is protected by reCAPTCHA and the Google Privacy Policy and Terms of Service apply.

Do not fill in this field:

This site is protected by reCAPTCHA and the Google Privacy Policy and Terms of Service apply.

$

Do not fill in this field:

This site is protected by reCAPTCHA and the Google Privacy Policy and Terms of Service apply.