Listing Tools

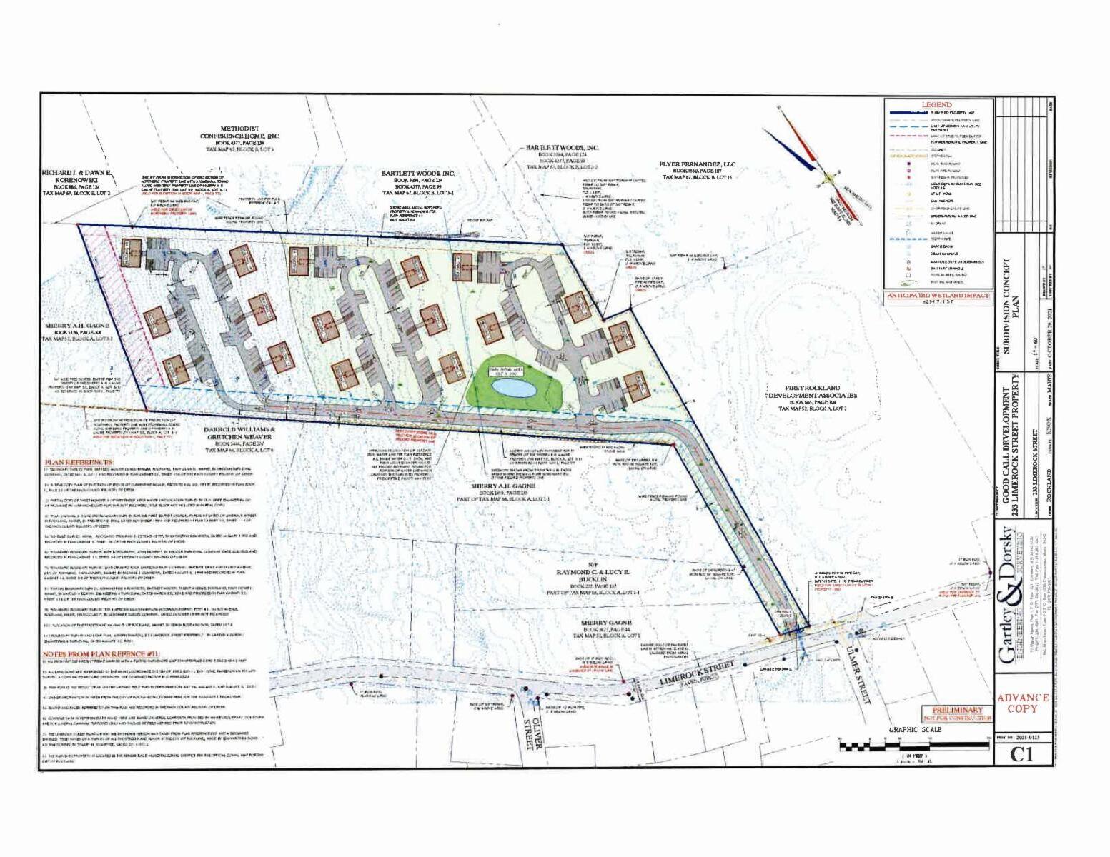
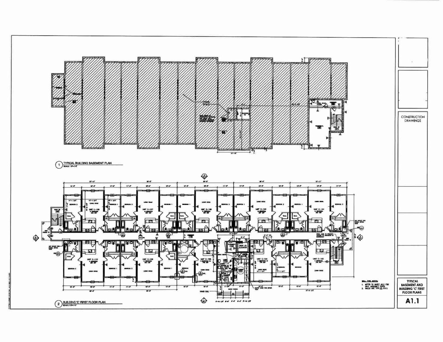
Exceptional development opportunity in Rockland, Maine. Desirable location less than 1 mile to downtown, oceanfront and ferry terminal, servicing the islands, and just a short drive to Knox County Regional Airport. Owner welcomes serious investors or partnership offers toward completion, or outright purchase. Beginning with a sizeable 9.84 acre parcel that benefits from access to public utilities, the project includes several years of extensive site plan work, due diligence and planning by local and accomplished real estate investors. Neighborhood already hosts multi-family housing developments. A variety of configurations to consider, designed by the most reputable engineers and architects in beautiful midcoast Maine. This opportunity is zoned for multi-family residences, up to 196 units. Multiple site plans available with a variety of configurations. Owner has significant local ties to the area, with connections to governance, builders, financing, and subcontractors to facilitate next phase of development. Expectations for 2 bedroom units in new builds will exceed $2,000 per month, upon completion. The 120 unit configuration has estimated ACV of $36M, with under $20M estimated build cost, while enjoying significant monthly cash flow. Rockland serves as the cultural and geographic 'hub' of mid-coast Maine, situated nearly equidistant between Portland and Bangor International Airports, and boasting multi-transportational options between the Knox County Regional Airport, Rockland Ferry Terminal, US Rt 1 and Midcoast Rail Service. Rockland is home to a thriving arts community featuring galleries, festivals, museums and theater, and over 30 eateries to choose from. The historic downtown, lighthouses, and variety of things to do and places to stay, including the Samoset Resort and golf course, make Rockland special. Rockland thrives on tourism and a robust workforce, ensuring an indefinite need for housing and a community committed to ongoing development.

Property Details of 233 Limerock Street

Property Details

Exterior Features

Map Location

Driving Directions

Listed by Pooley Realty Group (jessicapooleyrealtor@gmail.com)

Listing data is derived in whole or in part from the Maine IDX & is for consumers' personal, non commercial use only. Dimensions are approximate and not guaranteed. All data should be independently verified. ©2026 Maine Real Estate Information System, Inc. All Rights Reserved. equal opportunity housing logo   Privacy Policy

Megunticook Real Estate participates in ©2026 Maine Listings Internet Data Exchange program, allowing us to display other Maine IDX Participants' listings. This website does not display complete listings. Certain listings of other real estate brokerage firms have been excluded. Mortgage figures are estimates. Check with your bank or proposed mortgage company for actual interest rates. This product uses the FRED® API but is not endorsed or certified by the Federal Reserve Bank of St. Louis.

Hi there! How can we help you?

Contact us using the form below or give us a call.

Send Us A Message:

I agree to receive marketing and customer service calls and text messages from Megunticook Real Estate. To opt out, you can reply 'stop' at any time or click the unsubscribe link in the emails. Consent is not a condition of purchase. Msg/data rates may apply. Msg frequency varies. Privacy Policy.

Do not fill in this field:

This site is protected by reCAPTCHA and the Google Privacy Policy and Terms of Service apply.

Hi there! How can we help you?

Contact us using the form below or give us a call.

Send Us A Message:

Do not fill in this field:

This site is protected by reCAPTCHA and the Google Privacy Policy and Terms of Service apply.

Hi there! How can we help you?

Contact us using the form below or give us a call.

Send Us A Message:

Do not fill in this field:

This site is protected by reCAPTCHA and the Google Privacy Policy and Terms of Service apply.

Do not fill in this field:

This site is protected by reCAPTCHA and the Google Privacy Policy and Terms of Service apply.

Do not fill in this field:

This site is protected by reCAPTCHA and the Google Privacy Policy and Terms of Service apply.

Do not fill in this field:

This site is protected by reCAPTCHA and the Google Privacy Policy and Terms of Service apply.

$

Do not fill in this field:

This site is protected by reCAPTCHA and the Google Privacy Policy and Terms of Service apply.