Listing Tools

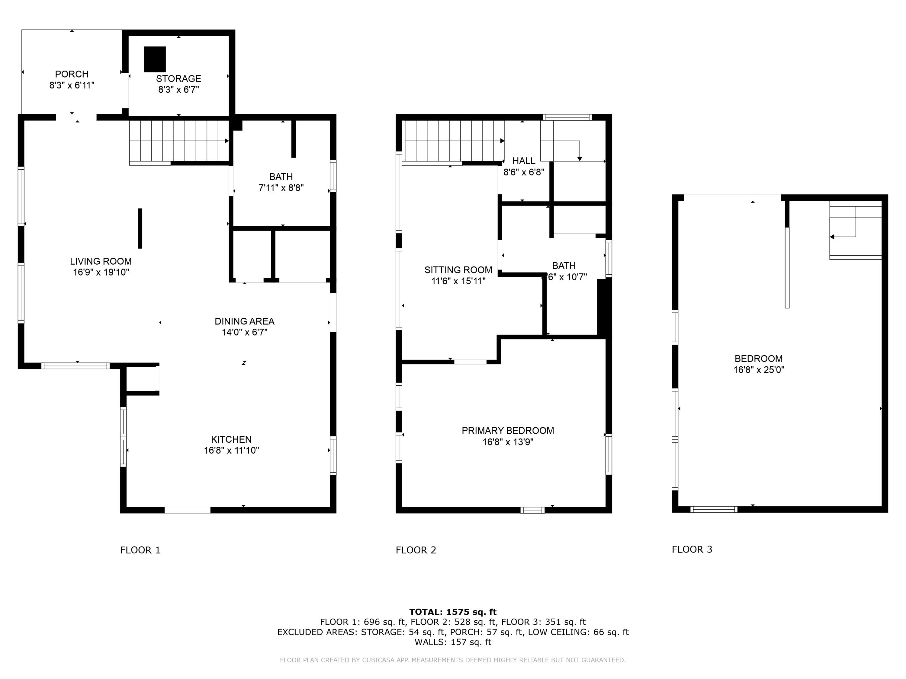
Post & Beam Lakefront Home on Sennebec Pond If you've been searching for the perfect lakefront retreat, your wait is over. This stunning post-and-beam home on scenic Sennebec Pond offers exceptional craftsmanship, serene natural beauty, and year-round comfort. Easy access to the water and dock across the lawn just steps from the door. Relax on the pontoon float with Bimini for shade, or grab your gear from the boat shed and enjoy a day on the water. Thoughtfully designed and meticulously built, this two-bedroom, two-bath home features thick foam board insulated walls, newer double pane windows throughout, highly efficient in-slab radiant floor heat, plus second zone hot water baseboards for additional warmth on second and third floors, if needed. Enjoy the peace and comfort uninterrupted with a 10000 watt whole house 2023 Generac Standby Generator. The kitchen features soap stone countertops and custom Starmark cabinetry with soft close doors and drawers. Solid surface and quartz countertops in the bathrooms as well. The primary suite spans two large rooms and a full bathroom on the second floor. The private master bedroom has unobstructed views of the pond, a sitting area, and 4 closets. The second spacious bedroom owns the third floor with expansive views of the lake and the beautiful yard. A large, oversized garage provides ample space for vehicles, boat storage, a workshop, and possible future expansion. Plenty of space in the driveway for all of your guests. Whether you're relaxing by the water, tending your garden, or working in the shop, this property offers a rare blend of peace, practicality, and beauty-perfect for those seeking a life well-lived by the lake.

Property Details of 84 Dewmar Lane

Property Details

Interior Features

Exterior Features

Utilities and Appliances

Other Details

Map Location

Driving Directions

Listed by Lone Pine Real Estate Company (info@lonepinere.com)

Listing data is derived in whole or in part from the Maine IDX & is for consumers' personal, non commercial use only. Dimensions are approximate and not guaranteed. All data should be independently verified. ©2025 Maine Real Estate Information System, Inc. All Rights Reserved. equal opportunity housing logo   Privacy Policy

Megunticook Real Estate participates in ©2025 Maine Listings Internet Data Exchange program, allowing us to display other Maine IDX Participants' listings. This website does not display complete listings. Certain listings of other real estate brokerage firms have been excluded. Mortgage figures are estimates. Check with your bank or proposed mortgage company for actual interest rates. This product uses the FRED® API but is not endorsed or certified by the Federal Reserve Bank of St. Louis.

Hi there! How can we help you?

Contact us using the form below or give us a call.

Send Us A Message:

I agree to receive marketing and customer service calls and text messages from Megunticook Real Estate. To opt out, you can reply 'stop' at any time or click the unsubscribe link in the emails. Consent is not a condition of purchase. Msg/data rates may apply. Msg frequency varies. Privacy Policy.

Do not fill in this field:

This site is protected by reCAPTCHA and the Google Privacy Policy and Terms of Service apply.

Hi there! How can we help you?

Contact us using the form below or give us a call.

Send Us A Message:

Do not fill in this field:

This site is protected by reCAPTCHA and the Google Privacy Policy and Terms of Service apply.

Hi there! How can we help you?

Contact us using the form below or give us a call.

Send Us A Message:

Do not fill in this field:

This site is protected by reCAPTCHA and the Google Privacy Policy and Terms of Service apply.

Do not fill in this field:

This site is protected by reCAPTCHA and the Google Privacy Policy and Terms of Service apply.

Do not fill in this field:

This site is protected by reCAPTCHA and the Google Privacy Policy and Terms of Service apply.

Do not fill in this field:

This site is protected by reCAPTCHA and the Google Privacy Policy and Terms of Service apply.

$

Do not fill in this field:

This site is protected by reCAPTCHA and the Google Privacy Policy and Terms of Service apply.